Like our work? Arrange a meeting with us at our office, We'll be happy to work with you!
We are always looking for new talents and we were expecting you. Time to apply, buddy!
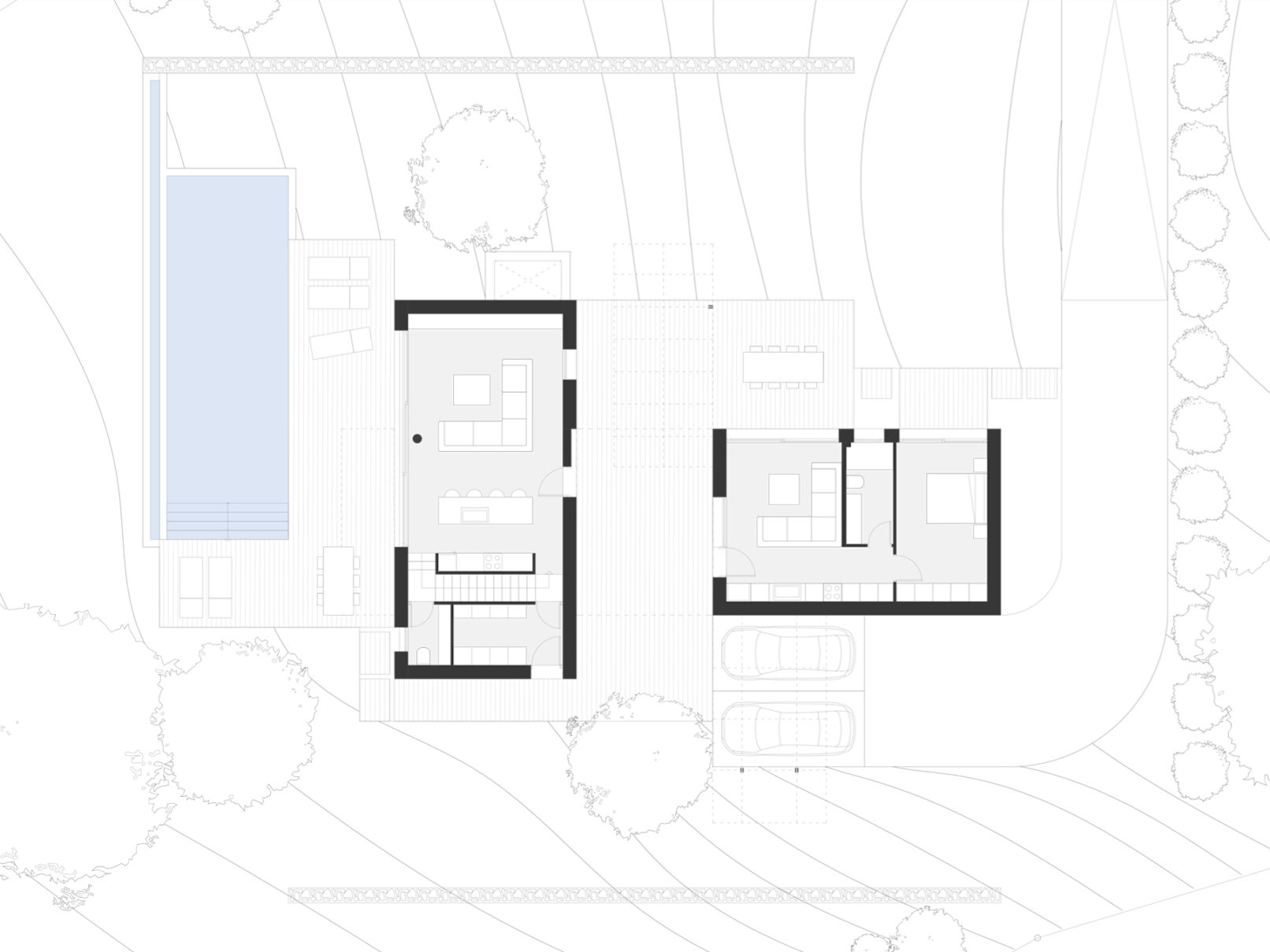
LOCATION
Crete, Greece
AREA
270 sq.m.
TYPE
Residential
STATUS
Permit
ARCHITECTURAL DESIGN
β26 architects
DESIGN TEAM:
Anastasios Karnesis Iro Mastoraki